Projeto Técnico (PT) de Segurança Contra Incêndio
Simplifique a elaboração ou alteração do seu Projeto Técnico de Segurança Contra Incêndio. Envie uma mensagem agora e conte com o apoio de um especialista para tirar suas dúvidas e elaborar uma proposta personalizada. Cuidamos de todo o processo de emissão ou renovação para você não perder tempo. Entre em contato e resolva hoje mesmo.
O Projeto Técnico (PT) de Segurança Contra Incêndio
O Projeto Técnico é o processo mais robusto de regularização. Diferente das modalidades simplificadas, ele exige que toda a documentação (plantas e cálculos) seja submetida à análise e aprovação prévia do Corpo de Bombeiros antes da execução total e da solicitação de vistoria.
1. Quando o Projeto Técnico é Obrigatório?
O Projeto Técnico é exigido sempre que a edificação apresentar características que indiquem um risco maior ou maior complexidade de evacuação. De acordo com a IT 01/2025, ele é obrigatório se a edificação se enquadrar em qualquer uma das situações abaixo:
Pelo Porte Físico:
- Área construída superior a 750 m² e altura acima de 3 pavimentos; OU
- Área construída superior a 1.500 m² e altura superior a 6 metros.
Pela Complexidade dos Sistemas: Independente da área ou altura, se a edificação exigir sistemas complexos, como:
- Chuveiros automáticos (Sprinklers);
- Controle de fumaça;
- Detecção e alarme de incêndio (quando exigido por norma específica);
- Sistemas de espuma ou resfriamento.
Pelos Riscos Específicos:
- Locais com explosivos ou fogos de artifício (Divisão L).
- Necessidade de comprovação de isolamento de risco entre edificações no mesmo lote.
3. Classificação das Ocupações
Para saber o que o prédio precisa, primeiro você deve identificar "o que funciona lá dentro". O Corpo de Bombeiros divide os usos em Grupos (Letras) e Divisões (Números).
Os principais grupos são:
A (Residencial): Prédios de apartamentos, alojamentos.
B (Serviço de Hospedagem): Hotéis, motéis.
C (Comercial): Lojas, shoppings.
D (Serviço Profissional): Escritórios, bancos, salões de beleza.
E (Educacional): Escolas, creches.
F (Reunião de Público): Restaurantes, bares, igrejas, estádios.
G (Serviços Automotivos): Garagens, postos de gasolina.
I (Indústria): Fábricas em geral.
J (Depósito): Armazéns.
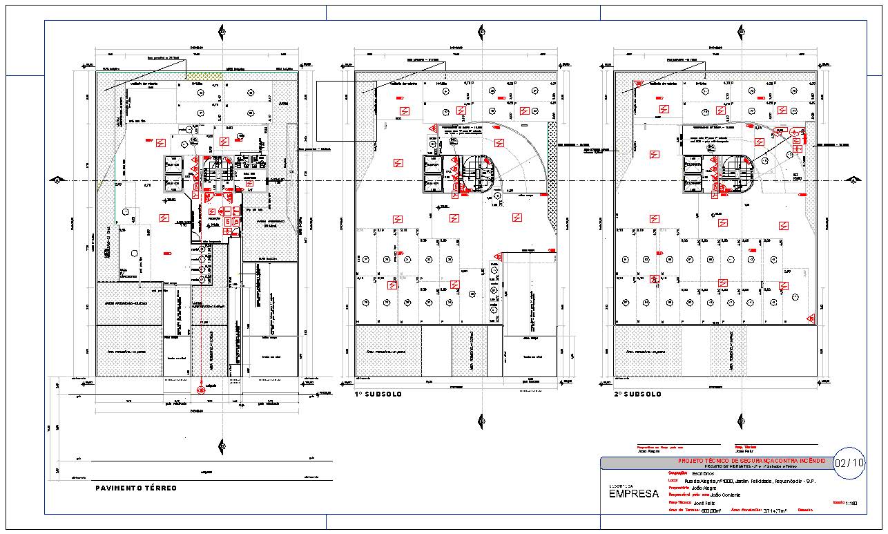
2. Composição do Projeto Técnico
O PT não é apenas uma planta baixa. Ele é um dossiê técnico composto por diversos documentos que provam que a edificação é segura. Os principais componentes exigidos para upload no sistema Via Fácil são:
Plantas de Medidas de Segurança (Projeto Arquitetônico de Incêndio):
- Devem ser apresentadas em formato .dwf.
- Devem seguir rigorosamente o padrão de cores: Vermelho para equipamentos de incêndio e Preto para arquitetura.
- Devem conter isométricos das tubulações hidráulicas.
Memoriais Descritivos e de Cálculo: Documentos textuais onde o engenheiro ou arquiteto justifica os dimensionamentos. Exemplos obrigatórios conforme o caso:
- Memorial de Cálculo Hidráulico: Para provar que a bomba e a reserva de incêndio atendem à pressão e vazão dos hidrantes e sprinklers.
- Memorial de Segurança Estrutural (IT 08): Detalha como a estrutura (vigas, pilares) resistirá ao fogo (TRRF) e quais materiais de revestimento (tintas intumescentes, gesso, etc.) serão usados.
- Memorial de Carga de Incêndio: Cálculo da quantidade de material combustível por metro quadrado, definindo o risco (baixo, médio ou alto).
- Memorial de Saídas de Emergência: Cálculo de população e largura de escadas e portas.
- ART/RRT: A Anotação de Responsabilidade Técnica de projeto é indispensável, vinculando o profissional às soluções adotadas.
3. O Processo de Aprovação
No Projeto Técnico, existe uma etapa que não ocorre nos processos simplificados: a Análise de Projeto.
- Protocolo: O responsável técnico envia as plantas e memoriais pelo sistema Via Fácil.
- Análise: Um analista do Corpo de Bombeiros verifica se o projeto atende ao Regulamento e às Instruções Técnicas. O prazo regulamentar para essa análise é de 30 dias úteis.
Resultado:
- Aprovado: O projeto recebe um carimbo digital e o proprietário pode executar as instalações conforme o desenho.
- Comunicado: O analista aponta erros ou faltas de informação. O responsável técnico deve corrigir (enviar carta-resposta e novas plantas) e solicitar reanálise. O pagamento da taxa permite reanálises por um período de 2 anos.
4. Vistoria e Emissão do AVCB
Somente após o Projeto Técnico ter o status "Aprovado" e as obras de segurança estarem concluídas, solicita-se a Vistoria. Nesta etapa, o vistoriador vai ao local com o projeto aprovado (disponível digitalmente) para conferir se o que foi instalado é idêntico ao que foi projetado.
- Divergências entre o projeto aprovado e a instalação real podem gerar reprovação na vistoria e exigência de Substituição de Projeto (se a mudança for grave, como aumento de área ou mudança de layout) ou FAT (para atualizações menores).
5. Exemplo Prático: Como classificar uma edificação
Vamos imaginar que você precisa regularizar uma Padaria de 200 m² em São Paulo.
Passo 1: Identificar a Ocupação (Consultar Tabela 1 do Decreto)
Você procura "Padaria" na tabela.
Grupo: C (Comercial).
Divisão: C-2 (Comércio com média e alta carga de incêndio).
Passo 2: Verificar o Tipo de Processo
Área: 200 m² (Menor que 750 m²).
Altura: Térrea (Menor que 12 m).
Conclusão: É um PTS (Projeto Técnico Simplificado).
Passo 3: Identificar as Exigências (Consultar Tabela de Exigências para PTS)
Ao cruzar os dados na tabela do decreto ou na Instrução Técnica 42 (IT-42), você verá que para essa padaria será exigido basicamente:
Extintores (Pó ABC e/ou Água);
Sinalização de saída e equipamentos;
Iluminação de emergência;
Brigada de incêndio (treinamento básico para os funcionários).
Nota: Por ser pequena (PTS), provavelmente não precisará de hidrantes.
Próximo passo para você
Se você está buscando regularizar um imóvel específico agora, o ideal é ter em mãos a área total construída que consta no IPTU, pois essa é a medida oficial usada para determinar se o caso é um processo simplificado (PTS) ou um projeto completo (PT).
Resumo Técnico
O Projeto Técnico é o "mapa" completo da segurança da edificação. Ele exige engenharia detalhada (cálculos hidráulicos, análise estrutural e dimensionamento de fluxo de pessoas) e passa pelo crivo de um analista antes de qualquer vistoria física. É a garantia de que edifícios grandes ou complexos possuem infraestrutura capaz de suportar um sinistro severo.
Confira o que há de novo em nossa empresa!
Entre em contato
Gostaríamos muito de ouvir de você!
Nosso compromisso com a utilização dos seus dados vem em 1º lugar, completamente seguro e não usamos para Marketing.
Fale com um de nossos colaboradores pelo Chat, aqui no canto direito, sem preencher nada e sem aqueles robôs.
Obrigado por entrar em contato!




