Engenharia de Segurança Contra Incêndio
Regularize seu Imóvel com Especialistas
Consultoria completa para obtenção de AVCB e CLCB, elaboração de projetos e emissão de laudos técnicos. Proteja seu patrimônio e garanta a conformidade com a legislação do Corpo de Bombeiros.
Entre em contato, agora!CLCB - Certificado de Licença do Corpo de Bombeiros
O CLCB é destinado a edificações de baixo potencial de risco e áreas menores. Possui a mesma validade jurídica do AVCB, mas com um processo de licenciamento mais célere.
Facilidade: Avaliamos se o seu imóvel se enquadra nesta categoria, simplificando a burocracia e garantindo a proteção legal do seu negócio de forma rápida.
Quer saber valores, quanto custa para ter seu CLCB?
Verifique nossa loja, mas adianto que temos
valores à partir de R$ 490,00.
AVCB - Auto de Vistoria do Corpo de Bombeiros
O AVCB é o documento fundamental que comprova que a edificação possui todas as condições de segurança contra incêndio previstas na lei. É indispensável para prédios comerciais, industriais e condomínios de médio e alto risco.
Nosso serviço: Realizamos desde a vistoria prévia até o acompanhamento da visita técnica dos bombeiros, garantindo que sua renovação ou primeira emissão ocorra sem intercorrências.
Quer saber valores, quanto custa para ter seu AVCB?
Verifique nossa loja, mas adianto que temos
valores à partir de R$ 1.290,00.
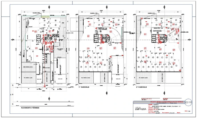
Projeto de Combate a Incêndio (PPCI)
Todo sistema eficiente começa com um planejamento rigoroso. Elaboramos o Projeto Técnico de Combate a Incêndio, detalhando a localização de hidrantes, extintores, sinalização de emergência e rotas de fuga.
Diferencial: Projetos otimizados que unem o menor custo de implementação à máxima eficiência em segurança, sempre em conformidade com as Instruções Técnicas (ITs) vigentes.
Quer saber valores, quanto custa para ter seu PT Aprovado?
Verifique nossa loja, mas adianto que temos
valores à partir de R$ 890,00.
Laudos e Pareceres Técnicos
Emitimos laudos técnicos especializados para validar o funcionamento e a manutenção de sistemas de segurança, tais como:
Laudo de Elétrica e SPDA (Para-raios).
Laudo de Abrangência de Grupo Gerador.
Atestado de Brigada de Incêndio.
Laudo de Estanqueidade de Gás.
Laudo do Sistema de hidrantes.
Laudo da Rede de Sprinklers (Chuveiro Automático).
Laudo de Alarme de Segurança Contra Incêndio.
Laudo de Pressurização de Escadas.
Quer saber valores, quanto custa para ter seu PT Aprovado?
Verifique nossa loja, mas adianto que temos
valores à partir de R$ 790,00.
Pronto para embarcar nessa jornada?
Segurança não é apenas uma obrigação legal, é a preservação da vida. Trabalhamos para que você não precise se preocupar com multas, interdições ou, pior, falhas em momentos críticos. Nossa equipe entrega documentação técnica impecável e suporte em todas as etapas do processo junto ao Corpo de Bombeiros.
Confira o que há de novo em nossa empresa!



